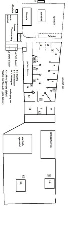
• plattegrond van de camping
  • plattegrond van de camping

plattegrond van de camping